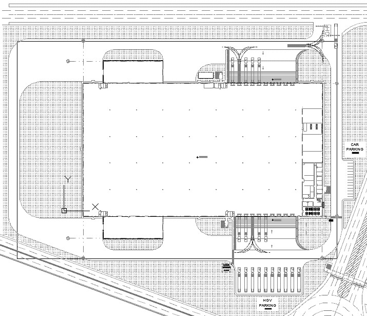
Steel lightweight structure with joists. Structural steel trusses frames of variable cross-section, 28,300m².
Client: Jerplan S.A. de C.V.

Nave Completely Knocked Down Warehouse (CKD) Audi


TYPE OF PROJECT: Industrial buildings
TYPE OF SERVICE: Industrial buildings
DATE OF PROJECT:
PLACE OF PROJECT: San José Chiapa, Puebla.